Dik Geurts Prostyle 1000

 3.395,00

100000 op voorraad

Offerte aanvragen

Vul het onderstaande formulier in en ontvang binnen enkele werkdagen een offerte van ons per e-mail.

Sinds 2009 een begrip

Eigen team monteurs

Deskundig advies

Omschrijving
Specificaties
Downloads
Hoe kies ik de juiste houtkachel?

Dik Geurts Prostyle 1000

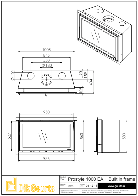
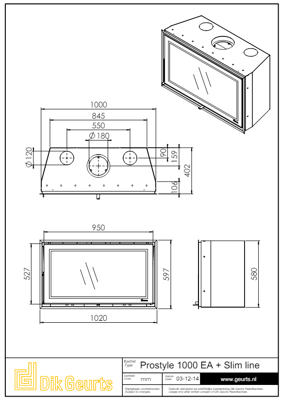
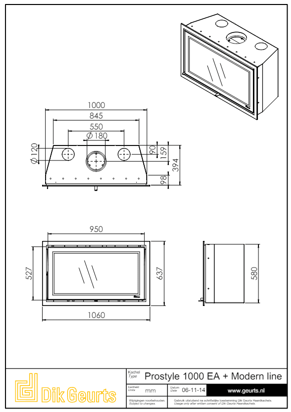
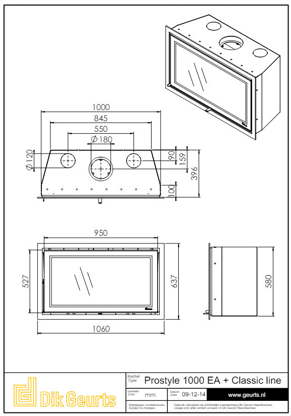
De Prostyle is speciaal ontworpen voor inbouw in een bestaande situatie. Hij is dus uitermate geschikt bij een verbouwing of renovatie De Prostyle types zijn voorzien van gescreend glas. En er zijn verschillende kaders leverbaar.

Adviesprijs:
Prostyle 1000: € 3.395,00

Opties:
Inbouwkader 4S-3mm: € 300,00
Kader classic line 4S, 40mm: € 300,00
Kader classic line 4S, maatwerk: € 627,00
Kader modern line 40mm: € 300,00
Kader Slime line 20mm: € 254,00

offerte houtkachel aanvragen

              Details Dik Geurts Prostyle 1000 houtkachel

Merk:Dik Geurts
Model:Inzet
Kleur:grijs
HxBxD:527x950x404 cm
Vuurzicht:front
Vermogen:9 – 13 kW
Rendementsklasse:77,7 %
Brandstof:hout
Rookgasafvoer:boven
Rookgasafvoer Ø:180 mm
Externe luchtaanvoer:ja
Gewicht:140 Kg

 

Extra informatie

Merk

Dik Geurts

Het belangrijkste aspect bij het kiezen van de juiste houtkachel is het benodigde vermogen (kW). Om het vermogen te berekenen gebruikt u de m³ inhoud als basis. Wanneer het kW vermogen van een houtkachel niet past bij de ruimte, krijgt u te veel of te weinig warmte. Wanneer de ruimte te klein is, zal u opmerken dat er te weinig zuurstof in de ruimte aanwezig is. Dit geeft een onaangenaam gevoel. Daarnaast werkt de houtkachel maar op halve kracht wat slecht is voor het verbrandingsproces, het milieu en uw portemonnee. U heeft dan een houtkachel met een te hoog vermogen. Als het vermogen te laag is t.o.v. de ruimte die u wil verwarmen, dan zal vanzelfsprekend de temperatuur te laag zijn.

BEKIJK ONS AANBOD VAN DIVERSE TOPMERKEN HOUTKACHELS 

Volume ruimteGoed geïsoleerd huisRedelijk geïsoleerd huisGeen isolatie
40 m³4 kW5 kW6 kW
60 m³4,5 kW5,5 kW7 kW
80 m³5,5 kW6,5 kW8 kW
120 m³7 kW8 kW10 kW
140 m³7,5 kW8,5 kW11 kW
160 m³8 kW9,5 kWnvt
180 m³8,5 kW10 kW

Wanneer de houtkachel als bijverwarming wordt gebruikt is de helft van het vermogen voldoende.

Voor persoonlijk advies kunt u kijken onder: contact en openingstijden op onze website

Bekijk voor meer informatie specificaties en downloads

Productomschrijving

Dik Geurts Prostyle 1000

De Prostyle is speciaal ontworpen voor inbouw in een bestaande situatie. Hij is dus uitermate geschikt bij een verbouwing of renovatie De Prostyle types zijn voorzien van gescreend glas. En er zijn verschillende kaders leverbaar.

Adviesprijs:
Prostyle 1000: € 3.395,00

Opties:
Inbouwkader 4S-3mm: € 300,00
Kader classic line 4S, 40mm: € 300,00
Kader classic line 4S, maatwerk: € 627,00
Kader modern line 40mm: € 300,00
Kader Slime line 20mm: € 254,00

offerte houtkachel aanvragen

              Details Dik Geurts Prostyle 1000 houtkachel

Merk:Dik Geurts
Model:Inzet
Kleur:grijs
HxBxD:527x950x404 cm
Vuurzicht:front
Vermogen:9 – 13 kW
Rendementsklasse:77,7 %
Brandstof:hout
Rookgasafvoer:boven
Rookgasafvoer Ø:180 mm
Externe luchtaanvoer:ja
Gewicht:140 Kg

 

Specificaties

Extra informatie

Merk

Dik Geurts

Downloads

Bezoek onze showroom in IJsselmuiden

Sinds 2009 is onze showroom in IJsselmuiden een begrip in de regio. Met trots ontvangen we al jaren klanten uit IJsselmuiden en omgeving, en velen van hen zijn u al voorgegaan. Bekijk gerust onze Projecten pagina om een indruk te krijgen van het werk dat we met zorg en vakmanschap hebben afgeleverd.

Bij ons bent u altijd welkom in een informele en laagdrempelige omgeving, waar persoonlijke aandacht centraal staat. Dankzij onze directe lijntjes kunnen wij snel schakelen en krijgt u altijd het advies dat bij u past. Bezoek onze showroom voor deskundig advies en laat u inspireren door de mogelijkheden.

Bent u op zoek naar een specifieke kachel? Dan raden we u aan om vooraf even te bellen. Zo kunnen we direct aangeven of de kachel in onze showroom aanwezig is en of deze ook brandend te zien is. Op die manier voorkomt u onnodige teleurstellingen en kunt u gericht langskomen.

Ook voor de installatie, service en het onderhoud staat ons eigen team van monteurs voor u klaar. Zo bent u verzekerd van een complete en zorgeloze ervaring, van begin tot eind. Kom gerust langs in onze showroom en ontdek wat wij voor u kunnen betekenen!

Winkelwagen0
Er zijn geen producten in de winkelwagen
Verder winkelen